Concept Design | Interior Design | Retail Design

Conservatorio, S.A., Santa Familia Residences & Retail

Panama City, Panama

 

As part of his ongoing collaboration with real estate developer Conservatorio, S.A., Scott Mitchem conceptualized the interiors and amenity spaces for Santa Familia, a waterfront luxury residential and retail project in the heart of the historic Casco Viejo neighborhood of Panama City, Panama — a UNESCO World Heritage Site.

Together with Atelier Aline Trindade, Mr. Mitchem delivered an elegantly modern schematic package that celebrates Panama’s tropical lifestyle in an urban setting. The creative brief called out one specific challenge: pairing a modern interior scheme with the architecture of the building — the result of an exhaustive landmarks process.

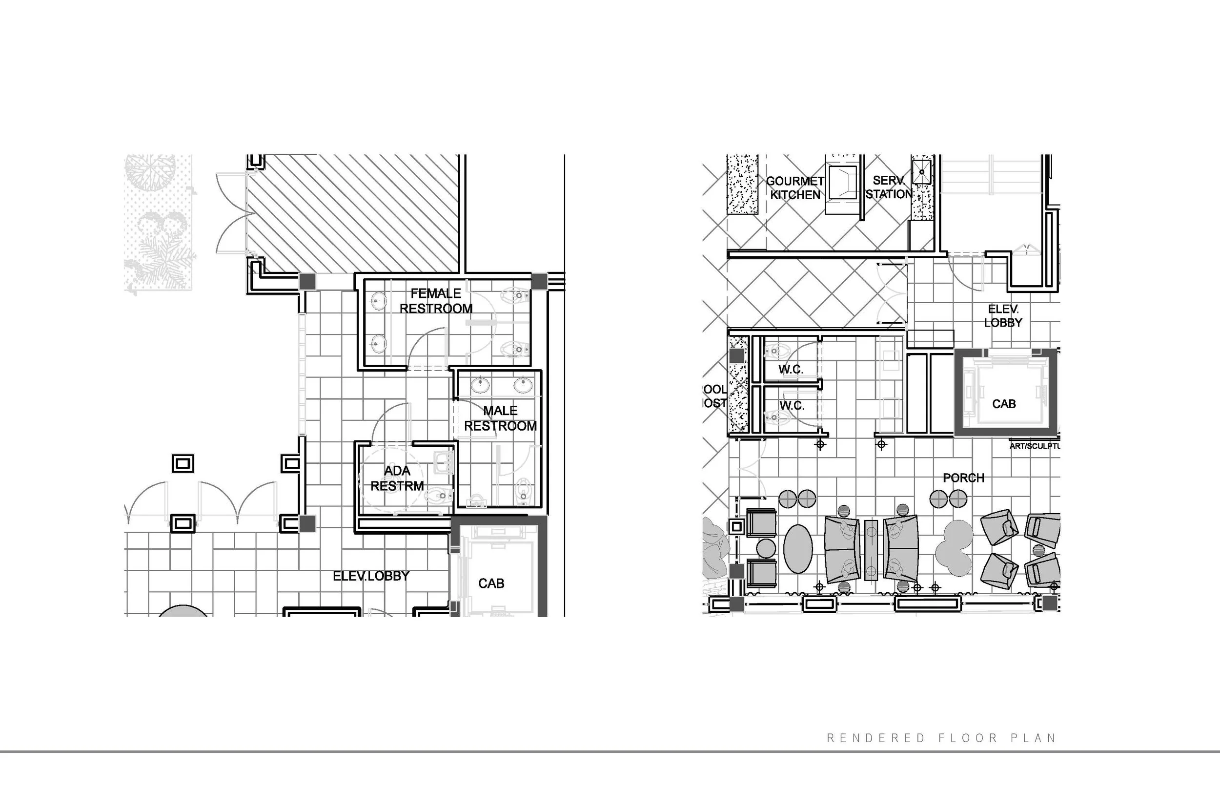
Classic, contextual elements such as terrazzo flooring were used to help marry the concept to its slightly exaggerated architecture, bringing in hints of color through aggregate of varying scale. Please see schematic concept deck below.

The project’s commercial component will include a restaurant by one of Panama’s top chefs, a café, and two retail spaces.

The demolition phase is complete, and construction administration is ongoing, with a launch date of late 2023.

 

Renderings, Amenity Spaces


Concept Schematic Package

 
Previous
Previous

Starbucks, Arcos Bosques Reserve Café, Mexico

Next
Next

Panera Bread, New Café Design Concept